Entkernte, historische Altbauvilla mit Erweiterungspotenzial und Neubaumöglichkeit
Eckdaten
- Art Villa
- Lage 23795 Bad Segeberg
- Kaufpreis 798.000,00 €
- Wohnfläche ca. 285 m²
- Grundstück ca. 1.062 m²
- Zimmer 9
- Kellerfläche ca. 130 m²
- Baujahr 1913
- Etagenzahl 2
- Heizungsart Etagenheizung Gas-Heizung
- Einbauküche ja
- Anzahl Balkone 1
- Stellplatztyp Carport
- Stellplatzanzahl 2
- Bezugstermin nach Vereinbarung
- Fahrzeit Hauptbahnhof 5 min
- Fahrzeit nächste Autobahnauffahrt 5 min
- Fahrzeit nächster Flughafen 50 min
- Bodenbelag Fliesen Laminat Beton Parkett
- Ausstattung des Bades Badewanne Fenster
- Immobilien-ID 1125
Immobilie
In sehr begehrter Lage von Bad Segeberg steht dieses, ca. 1913 im Villen-Stil erbaute, Haus auf einem gut 1.062 m² großen Grundstück mit Südausrichtung.
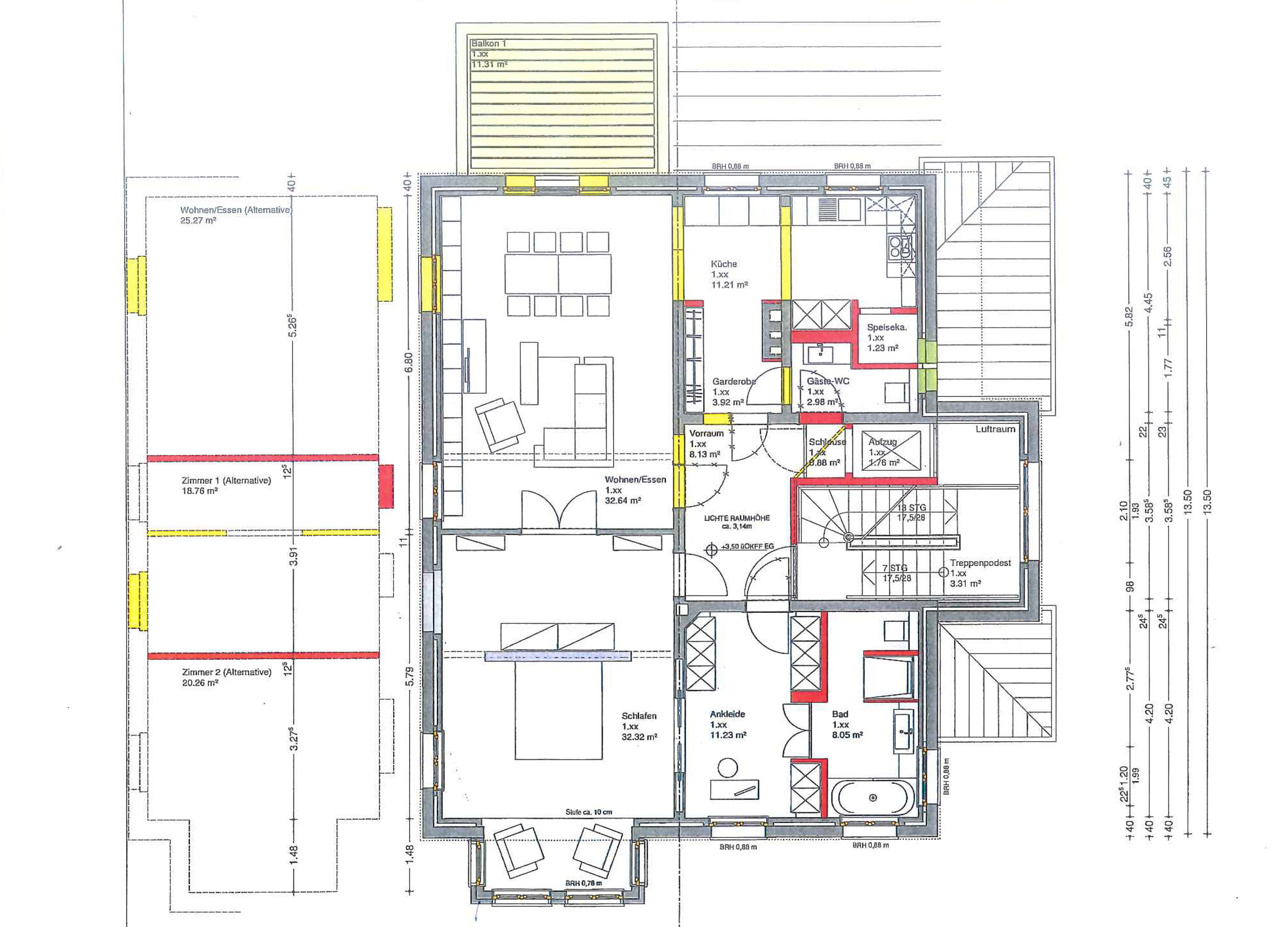
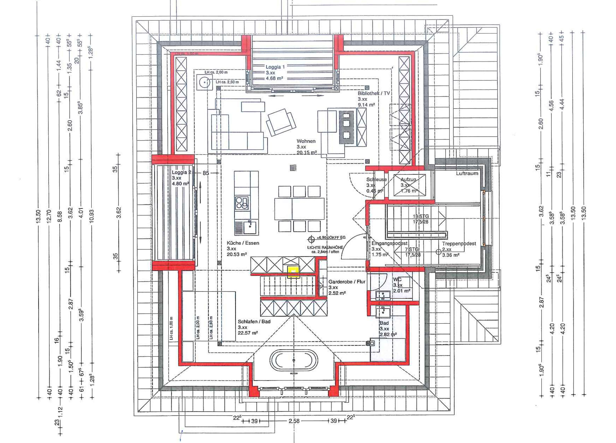
Die hier angebotene Immobilie diente bis zur Entkernung als reines Wohnhaus mit einer Wohnfläche von ca. 285 m². Durch seine hellen und großzügigen Räume kann es auch hervorragend zur Nutzung für Praxis- oder Bürotätigkeiten dienen.
Es liegen bereits fertige Architektenpläne für die Erweiterung mit insgesamt 3 Wohneinheiten mit einer Wohnfläche von dann ca. 360 m² vor. Zusätzlich steht Ihnen ein Kellergeschoss mit einer Deckenhöhe von ca. 2,30 m und einer Nutzfläche von ca. 130 m² zur Verfügung.
Die Architektenpläne können gerne bei Erwerb des Hauses zur Verfügung gestellt werden.
Das Grundstück mit seinen 1.062 m² hat eine Breite von ca. 20 Metern und eine Gesamtlänge von ca. 55 Metern. Eine mündliche Anfrage beim Bauamt Bad Segeberg ergab, dass auf dem hinteren Grundstücksteil grundsätzlich ein Neubau mit 2-geschössiger Bauweise plus einem Staffelgeschoss denkbar ist und die Möglichkeit der Zufahrt über den Carl-Stämmler-Weg angedacht ist. Die genauen Möglichkeiten sollten über eine Bauvoranfrage geklärt werden, hierbei sind wir Ihnen natürlich sehr gerne behilflich, sprechen sie uns an.
Haben wir Ihr Interesse geweckt? Wenn Sie uns eine Anfrage schicken, senden wir Ihnen umgehend das ausführliche Exposé mit weiteren Informationen zu. Lassen Sie sich außerdem bei einer persönlichen Besichtigung von dieser besonderen Immobilie mit ihren Möglichkeiten überzeugen.
Lage
Bad Segeberg ist ein Luftkurort im Städtedreieck Hamburg-Kiel-Lübeck. Aufgrund zahlreicher touristischer Highlights wie Kalkberg, Karl-May-Festspiele, Noctalis, Rennkoppel, historische Altstadt sowie zahlreiche Naherholungsgebiete ist Bad Segeberg ein wichtiger Bestandteil des Urlaubsgebietes Holsteinische Schweiz. Eine in alle Richtungen sehr gut vorhandene Verkehrsanbindung macht Bad Segeberg auch aus den Metropolregionen wie Kiel, Hamburg oder Lübeck leicht erreichbar. Die Buslinien in unmittelbarer Nähe der Altstadt, wie auch die vorhandenen Bahnverbindung Richtung Hamburg oder Neumünster machen die Nutzung des öffentlichen Nahverkehrs attraktiv und bringen Anwohner der umliegenden Orte, die ohne Auto unterwegs sind, problemlos in die attraktive Altstadt mit ihrer sternförmig vom Marktplatz ausgehenden Fußgängerzone. Bad Segeberg hat alle Annehmlichkeiten einer Kreisstadt mit über 15.000 Einwohnern zu bieten, wie z.B. Kino, große Sportstätten (Tennis, Reiten, Fuß- und Handball, Segeln), Freilufttheater, Kindergärten, alle Schulformen, Verwaltung vor Ort, eine Vielzahl an Vereinen, sowie ein großes Reservoir an Seen, Freizeit- und Naherholungsgebieten.
Ausstattung
-Erker
-Wintergarten
-Fliesen, Laminat, Beton, Parkett
-Kachelofen
-Balkon
-Vollkeller
-3 mögliche Wohneinheiten
-Nutzung als Praxis- oder Bürofläche
-kein Denkmalschutz!
Sonstiges
Besichtigungstermin
Sehr gerne vereinbaren wir mit Ihnen zur gewünschten Immobilie einen Besichtigungstermin, bitte sehen Sie vom eigenmächtigen Betreten des Grundstückes ab und akzeptieren die Privatsphäre des Eigentümers.
Widerrufsrecht
Makler sind per Gesetz seit dem 13. Juni 2014 verpflichtet, Sie über ihr Widerrufsrecht aufzuklären. Deshalb erhalten Sie vor der Zusendung unseres Exposés die Widerrufsbelehrung, sobald Sie diese akzeptiert haben, wird Ihnen das ausführliche Exposé automatisch zugestellt.
Kaufnebenkosten
Der Käufer zahlt die ausgewiesene Courtage, bei Abschluss des Kaufvertrages, an uns. Außerdem fallen Kosten des beurkundenden Notars, gegebenenfalls Kosten für die Änderung der Grundbucheintragungen und die Grunderwerbssteuer an.
Richtigkeit der Daten
Alle hier gemachten Angaben beruhen auf den uns vom Eigentümer mitgeteilten Daten.
Energieausweisangaben
- Enerigeausweistyp Bedarfsausweis
- Energiekennwert 288 KWh(m²*a)
- Energieeffizienzklasse H
- Energieausweis erstellt am 10.12.2025
- Energieausweis gültig bis 09.12.2035
- Heizungsart Etagenheizung Gas-Heizung
- Befeuerung / Energieträger Gas
Herzlichen Dank für Ihre Anfrage.
Wir werden diese so schnell wie möglich bearbeiten.







